- PROJET
- VICTOR HUGO PARIS 16
PLATEAUX DE BUREAUX
Description du projet
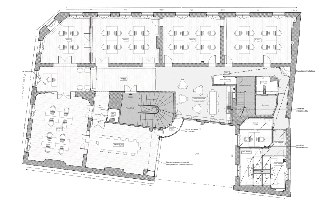
Ce projet visait à transformer un plateau de bureau dans un immeuble haussmannien en un espace moderne et fonctionnel, tout en préservant le charme de son architecture historique. Parquets en chevrons, moulures délicates et fenêtres à crémone ont été sublimés pour maintenir l’élégance intemporelle du lieu.
L’intégration discrète des réseaux techniques dans des plafonds dissimulés et des coffrages sur mesure a permis de respecter les décors d’origine tout en répondant aux exigences modernes. Des matériaux et finitions soigneusement choisis, comme le bois et des tons neutres, créent un équilibre subtil entre patrimoine et modernité.
Les espaces de travail, alternant open spaces, bureaux individuels et salles de réunion vitrées, allient luminosité et confidentialité. Des zones de convivialité, comme une cafétéria et une salle de pause, apportent une touche chaleureuse et accueillante.
Ce projet illustre l’expertise d’Opus Architecture dans la création d’environnements professionnels qui conjuguent harmonieusement modernité et respect du patrimoine.
un nouveau projet
Nous vous recevons sur rendez-vous du lundi au vendredi, et serons ravis de donner vie à vos ambitions architecturales.